Just Listed

9807A Silver Star Road

Silver Star, Vernon

9807A Silver Star Road, Silver Star, Vernon

Duplex

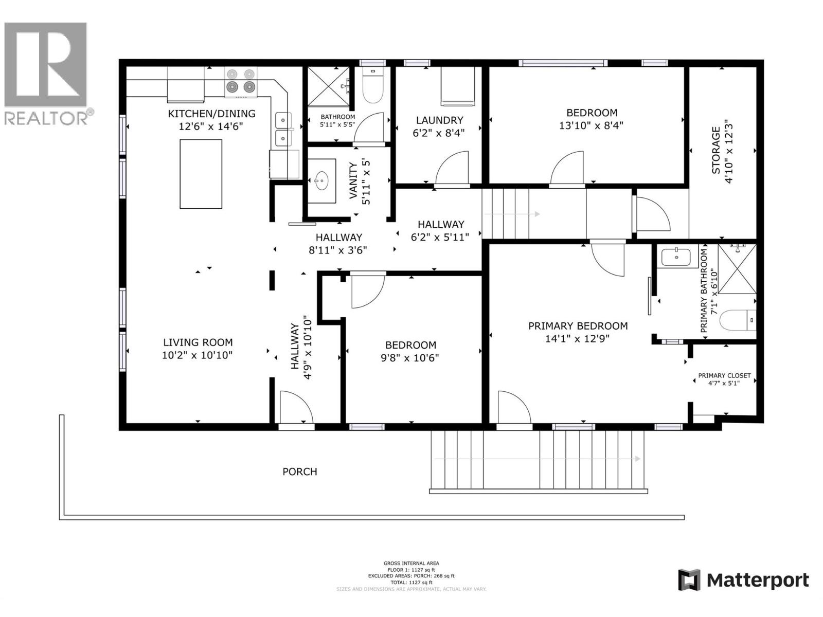
3 Bedrooms

2 Bathrooms

Size: 1,127 sqft

Built in 1989

$677,000

About this Duplex in Silver Star

Rare opportunity to own a 3 bed, 2 full bathroom turn-key ski-in/ski-out chalet with no strata fees at this price point at SilverStar Mountain Resort. Located on a quiet no-thru street just off the skiway on Spencer Lane, this south-facing property offers direct access to the slopes with views toward Tube Town and the Silver Queen Chair. The layout provides excellent flexibility for personal use or rental income, with the primary bed designed as a lock-off that allows the chalet to function as two separate units, making it ideal for short-term rentals while still offering private owner space. Recent updates include a new roof, new hot water tank, deck extension with staircase, updated furnishings, and an electrical upgrade for the hot tub. This fully furnished property is truly turn-key with a proven rental history and future bookings already in place. Unlike many properties at SilverStar, there are no rental restrictions, giving owners the flexibility to self-manage, use a rental company, short-term rent or simply enjoy the chalet privately. GST is applicable but may be deferred if used as a rental property. With true ski-in/ski-out access, no strata fees, flexible rental potential, and a prime Spencer Lane location, opportunities like this at SilverStar are rare at this price point! (id:14735)

Listed by RE/MAX Vernon.

MLS® Reciprocity Brought to you by your friendly REALTORS® through the MLS® System and OMREB (Okanagan Mainland Real Estate Board), courtesy of Team 3000 Realty Ltd. (Okanagan) for your convenience.
The information contained on this site is based in whole or in part on information that is provided by members of The Canadian Real Estate Association, who are responsible for its accuracy. CREA reproduces and distributes this information as a service for its members and assumes no responsibility for its accuracy.

More Details

  • MLS®10378475
  • Bedrooms3
  • Bathrooms2
  • TypeDuplex
  • Size1,127 sqft
  • Year Built1989

Contact us today to view this active listing

Phone: 778-297-3000

Toll Free: 1-888-859-3001













Address on Google Mapsmap marker icon
Map View
Street View

More about Silver Star, Vernon

Latitude: 50.35865077

Longitude: -119.06742469


Share Location